The Project
Impressions from the project process


Simon Simoes
Site Foreman
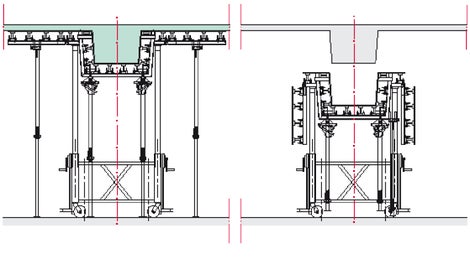
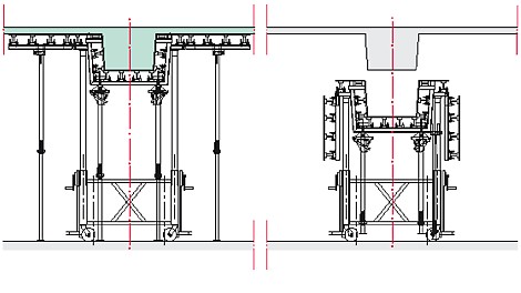
PERI's self-climbing screens in conjunction with slab and column formwork enabled us to quickly obtain our four days per floor structural cycle. The Automatic Climbing System which incorporated the column and beam formwork, provided a safe working area for various trades in every situation. PERI's engineered solutions allowed the systems to be quickly mastered and enabled tireless and safe use.

Contact us – we will be happy to help you.

